3241 Alfege Street SWCalgary, AB T2T3S4
Due to the health concerns created by Coronavirus we are offering personal 1-1 online video walkthough tours where possible.




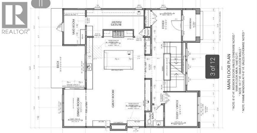
A New Gorgouse build with Monogram homes is now available! Currently under construction and to be fully finished in late June. Sitting on a full 50x120 lot & located on a quiet, tree-lined street in prestigious Upper Mount Royal, this exceptional new build offers over 3,500 sq.ft. of meticulously designed living space above grade, paired with a rare quad garage and an outstanding floor plan tailored for modern luxury living.Thoughtfully designed with both elegance and functionality in mind, the main level features soaring 10-foot ceilings and an expansive open-concept layout anchored by a stunning great room with a gas fireplace and oversized windows that flood the space with natural light. A chef-inspired kitchen sits at the heart of the home, complete with an oversized Taj Mahal Quartz island, premium appliance layout with pot filler, and a fully appointed butler’s pantry—perfect for entertaining at scale. The adjacent dining area opens seamlessly to the rear deck, creating an effortless indoor-outdoor flow. A private front office, sophisticated foyer, mudroom with built-ins, and a stylish wet bar complete the main floor.Upstairs, the home continues to impress with a well-appointed second level offering four spacious bedrooms, including a luxurious primary retreat featuring a spa-inspired ensuite with a freestanding tub, curbless shower, and a generous walk-in wardrobe. Three additional bedrooms are thoughtfully laid out—one with its own ensuite, while the others share a beautifully designed main bath. A dedicated upper laundry room adds everyday convenience, while open-to-below design elements enhance the sense of space and architectural sophistication throughout.The fully developed lower level provides an additional 1,500+ sq.ft. of living space, ideal for entertaining and relaxation. Here you’ll find a large media/family room, wet bar, a Flex room that could be a great space for an office or gym or a bedroom. 2 additional spacious bedrooms, and ample storag e—perfectly suited for guests or growing families.Completing this remarkable property is a rare rear quad garage, offering exceptional space for vehicles, storage, or hobby use—an increasingly hard-to-find feature in this sought-after inner-city location.With its timeless architecture, refined layout, and premium setting in one of Calgary’s most desirable communities, this home represents a rare opportunity to own a truly distinguished property in Upper Mount Royal.Additional Detailed plans and Selections are available to view in the Attachments (id:31684)
| 20 minutes ago | Listing updated with changes from the MLS® | |
| 3 days ago | Listing first seen on site |
The trademarks MLS®, Multiple Listing Service® and the associated logos are owned by The Canadian Real Estate Association (CREA) and identify the quality of services provided by real estate professionals who are members of CREA. Used under license.
The trademarks REALTOR®, REALTORS®, and the REALTOR® logo are controlled by The Canadian Real Estate Association (CREA) and identify real estate professionals who are members of CREA. These trademarks are owned or controlled by The Canadian Real Estate Association (CREA) and identify real estate professionals who are members of CREA (REALTOR®) and/or the quality of services they provide (MLS®).
This REALTOR.ca listing content is owned and licensed by REALTOR® members of The Canadian Real Estate Association.

