9, 615 36 Street NECalgary, AB T2A4W3
Due to the health concerns created by Coronavirus we are offering personal 1-1 online video walkthough tours where possible.

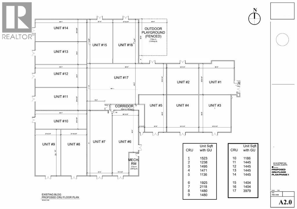
Welcome to Station 36! Presenting a ±1,480 sq. ft. retail condo unit ideal for a psychiatry/psychology clinic, located in a soon-to-be fully renovated strip mall in NE Calgary. The entire building is being gutted and converted into brand new retail condos, offering an excellent opportunity for both owner-users and investors. Situated along a busy corridor with great exposure, this high-visibility location is just a 5-minute walk to the LRT station, providing strong accessibility for patients and staff. Surrounded by established residential communities and complementary businesses, the area ensures consistent traffic and long-term growth potential. Estimated possession March 2027. (id:31684)
| 4 weeks ago | Listing updated with changes from the MLS® | |
| 4 weeks ago | Listing first seen on site |
The trademarks MLS®, Multiple Listing Service® and the associated logos are owned by The Canadian Real Estate Association (CREA) and identify the quality of services provided by real estate professionals who are members of CREA. Used under license.
The trademarks REALTOR®, REALTORS®, and the REALTOR® logo are controlled by The Canadian Real Estate Association (CREA) and identify real estate professionals who are members of CREA. These trademarks are owned or controlled by The Canadian Real Estate Association (CREA) and identify real estate professionals who are members of CREA (REALTOR®) and/or the quality of services they provide (MLS®).
This REALTOR.ca listing content is owned and licensed by REALTOR® members of The Canadian Real Estate Association.

