1,2, 615 36 Street NECalgary, AB T2A4W3
Due to the health concerns created by Coronavirus we are offering personal 1-1 online video walkthough tours where possible.

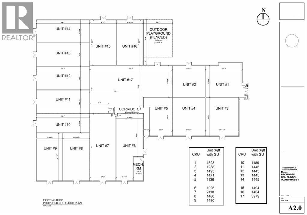
Welcome to Station 36!Presenting a ±2,761 sq. ft. Medical CRU for sale, perfect for a Dental Clinic. Located in a soon to be fully renovated commercial centre in Calgary. The entire building will be converted into brand new Medical and Retail CRUs for Sale. Great and rare opportunity for owner-users/investors. Located on one of the busiest major roads in Calgary with over 35,000 VPD. Great exposure to the LRT station which is 30 seconds away. Surrounded by established residential communities and complementary businesses, this location ensures consistent traffic and long-term growth potential.Estimated possession March 2027. (id:31684)
| 5 days ago | Listing updated with changes from the MLS® | |
| 5 days ago | Listing first seen on site |
The trademarks MLS®, Multiple Listing Service® and the associated logos are owned by The Canadian Real Estate Association (CREA) and identify the quality of services provided by real estate professionals who are members of CREA. Used under license.
The trademarks REALTOR®, REALTORS®, and the REALTOR® logo are controlled by The Canadian Real Estate Association (CREA) and identify real estate professionals who are members of CREA. These trademarks are owned or controlled by The Canadian Real Estate Association (CREA) and identify real estate professionals who are members of CREA (REALTOR®) and/or the quality of services they provide (MLS®).
This REALTOR.ca listing content is owned and licensed by REALTOR® members of The Canadian Real Estate Association.

