4220 Centre Street NECalgary, AB T2E 2Y9
Due to the health concerns created by Coronavirus we are offering personal 1-1 online video walkthough tours where possible.




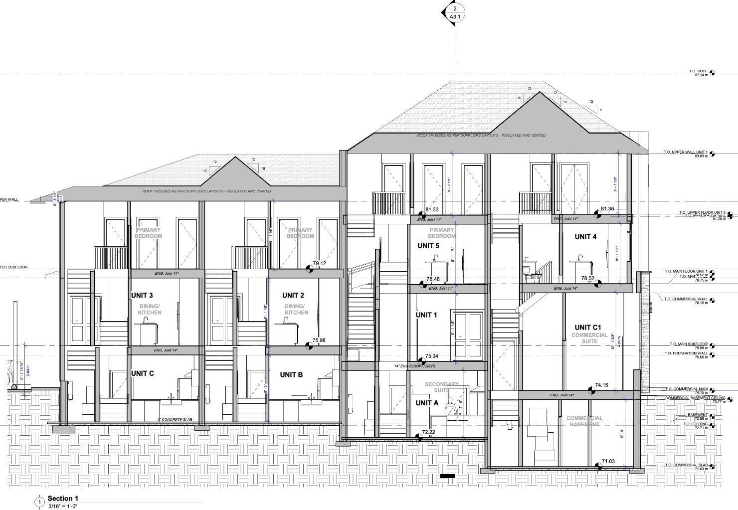
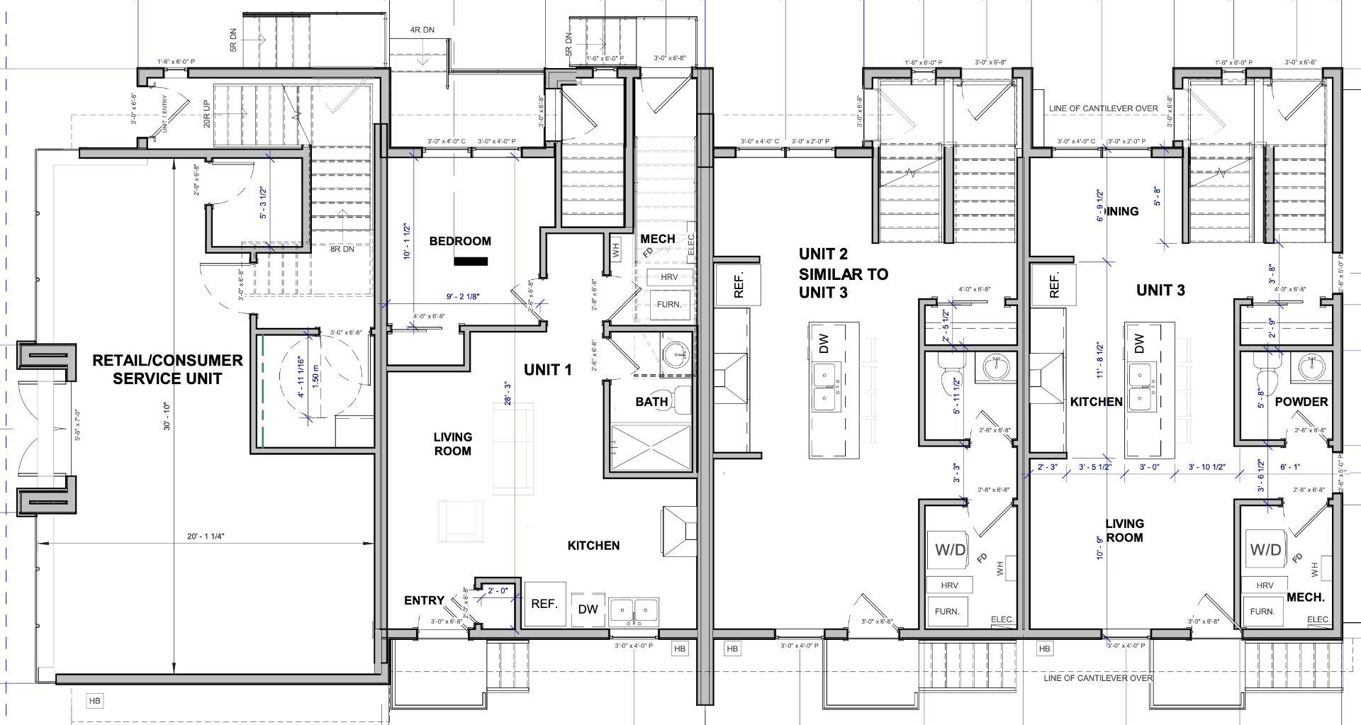
Exceptional MU-1 Development Opportunity – DP Approved & Ready to Build! Prime inner-city CORNER LOT offering MU-1 zoning—allowing for mixed-use development with commercial at grade and up to 6 storeys (5 residential above). Positioned on a high-exposure intersection with strong street visibility, this is a rare opportunity for builders and investors to step into a fully entitled development with no delays, demolition, or uncertainty remaining. The offering includes a fully approved Development Permit for a thoughtfully designed project featuring a 4-plex with 8 residential units plus 2 commercial spaces, along with a 4-stall carport providing convenient parking solutions. All architectural drawings, DSSP documents, and supporting planning materials are included, significantly reducing soft costs and accelerating the development timeline. Site preparation is fully complete, including demolition, asbestos remediation, and utility removals—allowing for immediate transition to excavation and construction. This is a true ready-to-build opportunity with substantial value already invested into approvals and pre-development work. Located in a rapidly evolving inner-city area, the site benefits from strong redevelopment momentum, surrounding investment activity, and long-term growth fundamentals. The MU-1 zoning provides exceptional flexibility for mixed-use design, making this an ideal opportunity for both experienced developers and long-term investors seeking scalable returns. This offering includes the land, fully approved plans, permits, and all completed pre-construction work—delivering a streamlined, near turn-key development opportunity in a high-demand location. A rare chance to acquire a fully prepared project and bring it to completion.
| a month ago | Listing first seen on site | |
| a month ago | Listing updated with changes from the MLS® |
Listing information is provided by Participants of the Alberta One Realty Listing Services (Pillar 9). IDX information is provided exclusively for personal, non-commercial use, and may not be used for any purpose other than to identify prospective properties consumers may be interested in purchasing. Information is deemed reliable but not guaranteed. Copyright 2026, Alberta One Realty Listing Services (Pillar 9)
Last checked 2026-05-15 08:10 AM UTC

