2232 30 Avenue SWCalgary, AB T2T 1R8
Due to the health concerns created by Coronavirus we are offering personal 1-1 online video walkthough tours where possible.




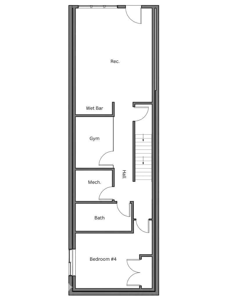
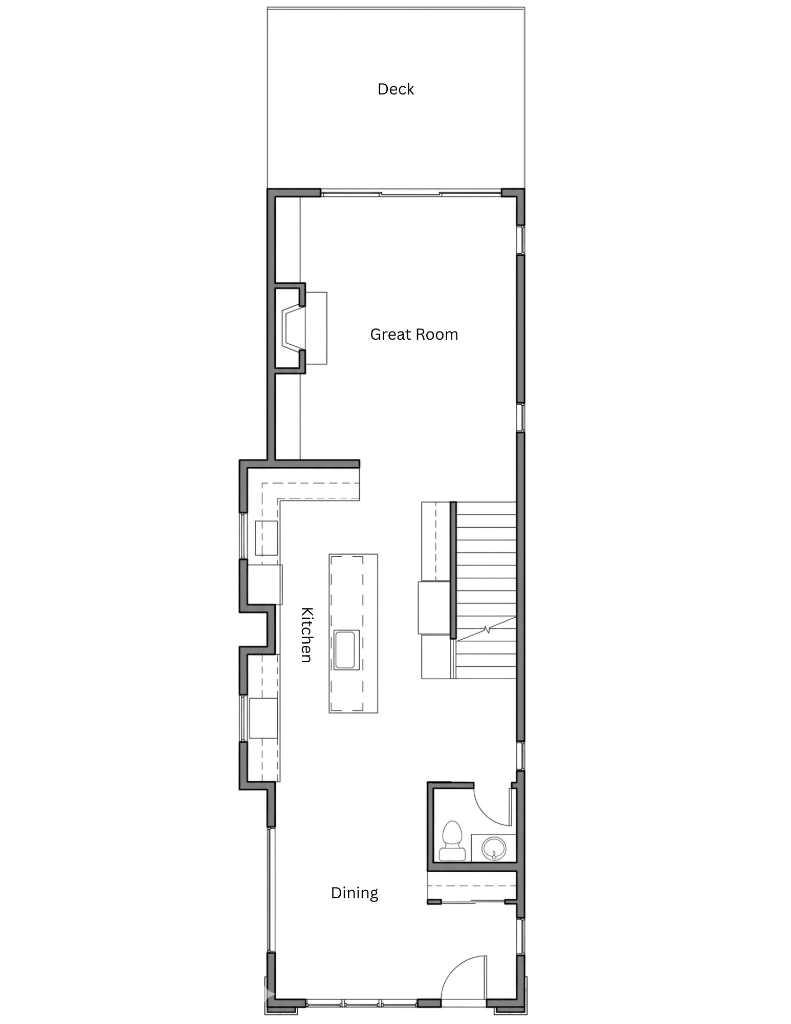
Modern luxury in the heart of Richmond. This exceptional detached two-story home offers a seamless open-concept floor plan designed for both sophisticated entertaining and comfortable family living. This build features two curated color palettes—light and dark. Please refer to photos of the builder's previous builds for a preview of both finish styles. The main level is anchored by a gourmet chef’s kitchen featuring a massive quartz island, premium finishes, and a spacious dining area that flows into the inviting living room with a sleek gas fireplace. A convenient powder room completes this level. The upper floor is thoughtfully designed with a large laundry room and three generous bedrooms—each boasting its own private walk-in closet. The primary retreat is a true sanctuary, featuring an expansive layout and a spa-like five-piece ensuite with a deep soaker tub and double vanity. Rare for the area, this full walkout home leads to a professionally finished lower level. Enjoy a dedicated home gym, a stylish wet bar, a large recreation room, and a fourth guest bedroom. Outside, the walkout access provides a seamless transition to the backyard and the double detached garage. Experience the perfect blend of inner-city convenience and high-end craftsmanship just minutes from Marda Loop and downtown.
| 2 months ago | Listing first seen on site | |
| 2 months ago | Listing updated with changes from the MLS® |
Listing information is provided by Participants of the Alberta One Realty Listing Services (Pillar 9). IDX information is provided exclusively for personal, non-commercial use, and may not be used for any purpose other than to identify prospective properties consumers may be interested in purchasing. Information is deemed reliable but not guaranteed. Copyright 2026, Alberta One Realty Listing Services (Pillar 9)
Last checked 2026-05-13 02:59 AM UTC

